top of page
Floor Plans

Lower Level (-1)
Room Number | Room | Floor Size (m²) | Coefficient | Net Size (m²) |
|---|---|---|---|---|
-1.1 | Plant room | 6.4 | 1 | 6.4 |
-1.2 | Bar & Lounge | 19.1 | 1 | 19.1 |
-1.3 | Attrium | 4.7 | 0.5 | 2.35 |
Total | 30.2 | 27.85 |
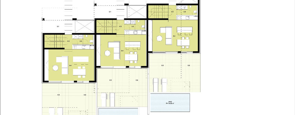
Garden Level (0)
Room Number | Room | Floor Size (m²) | Coefficient | Net Size (m²) |
|---|---|---|---|---|
0.1 | Covered Entrance | 3.4 | 0.75 | 2.55 |
0.2 | Entrance and Stairwell | 7.8 | 1 | 7.8 |
0.3 | Cloakroom + WC | 3.8 | 1 | 3.8 |
0.4 | Living Room | 33.5 | 1 | 33.5 |
0.5 | Covered Terrace | 16.45 | 0.75 | 12.34 |
0.6 | Uncovered Terrace | 24.7 | 0.5 | 12.35 |
Total | 89.65 | 72.34 |
1st Floor (+1)
Room Number | Room | Floor Size (m²) | Coefficient | Net Size (m²) |
|---|---|---|---|---|
1.1 | Stairs and Hallway | 12.56 | 1 | 12.56 |
1.2 | Bedroom 1 | 13.5 | 1 | 13.5 |
1.3 | Bedroom 2 | 15.12 | 1 | 15.12 |
1.4 | Bathroom 1 | 3.2 | 1 | 3.2 |
1.5 | Bathroom 2 | 3.2 | 1 | 3.2 |
1.6 | Bedroom 3 | 7.6 | 1 | 7.6 |
1.7 | Uncovered Terrace | 10.8 | 0.5 | 5.4 |
Total | 65.98 | 60.58 |
Grand Total
Room Number | Room | Floor Size (m²) | Coefficient | Net Size (m²) |
|---|---|---|---|---|
163.86
|
Extra
Room Number | Room | Floor Size (m²) | Coefficient | Net Size (m²) |
|---|---|---|---|---|
Swimming Pool | 15 | N/A | 15 | |
Parking Space | 15 | N/A | 15 |
Disclaimer:
The surface areas presented in this table have been calculated based on the layout of House A1. Please note that actual apartment sizes may vary depending on the specific position of the building on the plot. Variations of approximately ±2–3% are possible due to construction tolerances and site conditions.
bottom of page













